热点关注
城镇污水处理厂污泥消化器及污水除臭工艺
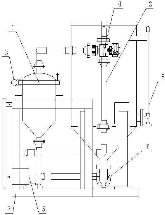
本发明公开了一种城镇污水处理厂污泥消化器及污水除臭工艺,它涉及污水处理技术领域。它包括填料室、接触室、进泥口、电动阀、排泥泵、排泥口和支架,支架上安装有填料室和接触室,填料室的进口端设置有进泥口,填料室中设置有反冲洗装置,填料室的出口端通过电动阀与接触室连接,接触室中设置有曝气装置,接触室的外壁安装有液位计,接触室的底部与排泥口连接,排泥口通过管道与排泥泵连接。本发明污泥量消化比例高,大大提高污泥处理效率,且能耗低,有效节省设备运行费用,应用前景广阔。

权利要求书
1.一种城镇污水处理厂污泥消化器,其特征在于,包括填料室(1)、接触室(2)、进泥口(3)、电动阀(4)、排泥泵(5)、排泥口(6)和支架(7),支架(7)上安装有填料室(1)和接触室(2),填料室(1)的进口端设置有进泥口(3),填料室(1)中设置有反冲洗装置,填料室(1)的出口端通过电动阀(4)与接触室(2)连接,接触室(2)中设置有曝气装置,接触室(2)的外壁安装有液位计(8),接触室(2)的底部与排泥口(6)连接,排泥口(6)通过管道与排泥泵(5)连接。
2.根据权利要求1所述的一种城镇污水处理厂污泥消化器,其特征在于,所述的填料室(1)中放置的填料为柱状,填料的规格为:直径4mm,长5-10mm。
3.根据权利要求1所述的一种城镇污水处理厂污泥消化器,其特征在于,所述的排泥泵(5)采用螺杆泵。
4.根据权利要求1所述的一种城镇污水处理厂污泥消化器,其特征在于,所述的填料室(1)、接触室(2)与污泥的接触部均采用304不锈钢壳体。
5.根据权利要求1所述的一种城镇污水处理厂污泥消化器,其特征在于,所述的支架(7)采用304不锈钢支架。
6.一种城镇污水处理厂污水除臭工艺,其特征在于,其工艺流程为:首先将污水进行预处理,并通过AAO,即厌氧-缺氧-好氧法对污泥进行除磷脱氮操作,处理后的污泥依次通过二沉池、消化池、污泥池沉淀进入污泥脱水间,通过污泥消化器将原污水处理厂的污泥消化、减量,污泥消化器中填料包埋微生物菌种,待设备运转后包埋的微生物菌种与污泥接触,在适当的环境形成微生物菌的次世代,微生物菌与污泥物质发生吸附、凝聚和生物转化降解作用,将原污泥量消化20-50%。
说明书
一种城镇污水处理厂污泥消化器及污水除臭工艺
技术领域
本发明涉及的是污水处理技术领域,具体涉及一种城镇污水处理厂污泥消化器及污水除臭工艺。
背景技术
污泥消化是现代污水处理厂的重要组成部分,是污泥处理的重要步骤,起着降解有机物、促进污泥稳定化的作用,通过利用微生物的代谢作用,使污泥中的有机物质稳定化,随着污泥处理要求的提高,污泥消化在城市污水处理厂和专业化污泥处理中得到了越来越多的应用。现有市面上的污泥消化器种类繁多,但普遍存在污泥量消化比例低、处理效率低下的问题,同时污泥消化装置能耗高,设备运行费用高。为了解决上述问题,设计一种城镇污水处理厂污泥消化器及污水除臭工艺尤为必要。
发明内容
针对现有技术上存在的不足,本发明目的是在于提供一种城镇污水处理厂污泥消化器及污水除臭工艺,结构简单,设计合理,污泥量消化比例高,提高污泥处理效率,且能耗低,有效节省设备运行费用,实用性强,易于推广使用。
为了实现上述目的,本发明是通过如下的技术方案来实现:一种城镇污水处理厂污泥消化器,包括填料室、接触室、进泥口、电动阀、排泥泵、排泥口和支架,支架上安装有填料室和接触室,填料室的进口端设置有进泥口,填料室中设置有反冲洗装置,填料室的出口端通过电动阀与接触室连接,接触室中设置有曝气装置,接触室的外壁安装有液位计,接触室的底部与排泥口连接,排泥口通过管道与排泥泵连接。
作为优选,所述的填料室中放置的填料为柱状,填料的规格为:直径4mm,长5-10mm。
作为优选,所述的排泥泵采用螺杆泵,排泥泵还安装有控制排泥量的变频器。
作为优选,所述的填料室、接触室与污泥的接触部均采用304不锈钢壳体。
作为优选,所述的支架采用304不锈钢支架,用以支撑填料室和接触室。
一种城镇污水处理厂污水除臭工艺,其工艺流程为:首先将污水进行预处理,并通过AAO,即厌氧-缺氧-好氧法对污泥进行除磷脱氮操作,处理后的污泥依次通过二沉池、消化池、污泥池沉淀进入污泥脱水间,通过污泥消化器可将原污水处理厂的污泥消化、减量,污泥消化器中填料包埋微生物菌种,待设备运转后包埋的微生物菌种与污泥接触,在适当的环境形成微生物菌的次世代,微生物菌与污泥物质发生吸附、凝聚和生物转化降解等作用,将原污泥量消化20-50%。
本发明的有益效果:本装置污泥量消化比例高,可将原污泥量消化20-50%,大大提高污泥处理效率,使污水处理厂污泥处置更节能,能耗低,有效节省设备运行费用,应用前景广阔。
- 2021-07-14久马高速生活污水设备操作培训
- 2021-07-14四川交建污水处理技术培训
- 2021-03-31污水药剂搅拌装置及其使用方法
- 2020-10-02集沉砂隔油压榨一体过滤设备
- 2020-09-29市政污水排污管铺设施工系统














电话:028-81291392
手机:18123218647
邮箱:349984202@qq.com